
На торги по работам на улице академика Харитона пришла единственная фирма. Она же строит нам мост через Сатис.
Нижегородское ООО ФИРМА «МАГИСТРАЛЬ» расширит улицу академика Харитона, об этом сообщается на сайте госзакупок. Тендер завершился 16 июня, а реестровой датой стал сегодняшний день, 21 июня. При этом основанием заключения контракта с единственным поставщиком стало законное признание закупки несостоявшейся: на неё была подана лишь одна бумага. В ценовом разделе контракта зафиксировали 80 миллионов 226 тысяч рублей, причём пятую часть — 16 млн — разрешено потратить на субподрядчиков.
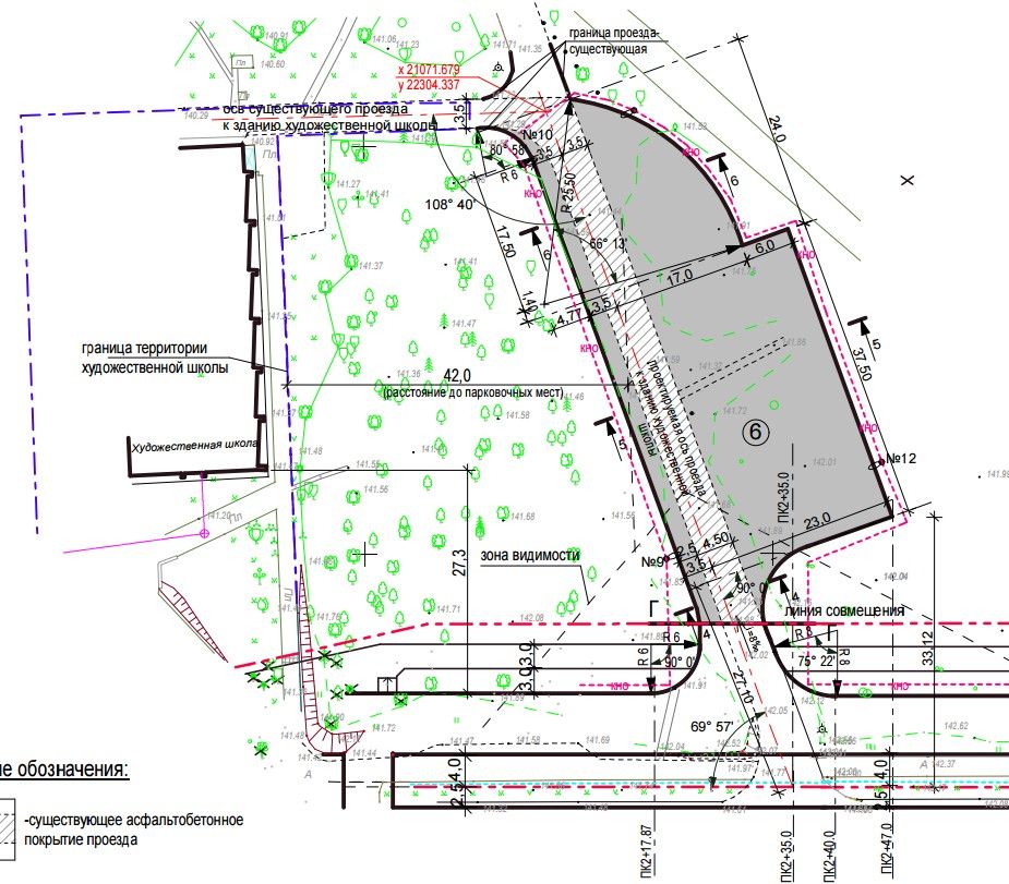
Подробные чертежи нового асфальтового полотна можно изучить из архивов,
приложенных к закупке. В целом некоторые выводы, которые мы сделали из попавших к нам эскизов ещё
в марте, подтвердились: разделительный барьер действительно кончится у художественной школы, а все 4 полосы движения синхронно повернут в сторону сквера, отходя от тротуара у магазина «Юнона». Ранее глава города
пообещал, что «бутылочного горлышка» здесь не образуется.
Работы будут разделены на этапы, а движение машин полностью перекрывать не будут. Зато пешеходам достанется: к примеру, во время I периода работ движение пешеходов со стороны ДХШ по тротуару будет прекращено, придётся обходить за зданиями. Причиной этому станет заезд строительной техники: они будут попадать на площадку со стороны магазина «Юнона». Потом перекроют проход жителей квартала к Октябрьскому, а проезд личного автотранспорта к жилым домам будет лишь с улицы Победы. На 1 этапе сделают участки от Октябрьского до ДХШ, затем — до проезда к Лыжной базе, а после — до пересечения с проспектом Ленина. Во время II периода реконструкции заменят существующую проезжую часть, причём так, чтобы хотя бы частично не мешать заезжать жильцам в свои дворы.
Школу защитят от шума низкорослым курильским чаем и боярышником. Как будет выглядеть парковка на четыре десятка машин родителей юных музыкантов, смотрите на рисунке. Рекламный щит напротив съезда с проспекта Ленина перенесут глубже. Кроме того, рабочих «Магистрали» ждет масштабный перенос двух газопроводов и высоковольтного кабель-канала.
Авторы проекта неоднократно отметили, что работы в границах жилой застройки предстоят в стеснённых условиях.
Прокомментировать
Все новости по теме
Расширение улицы Академика Харитона